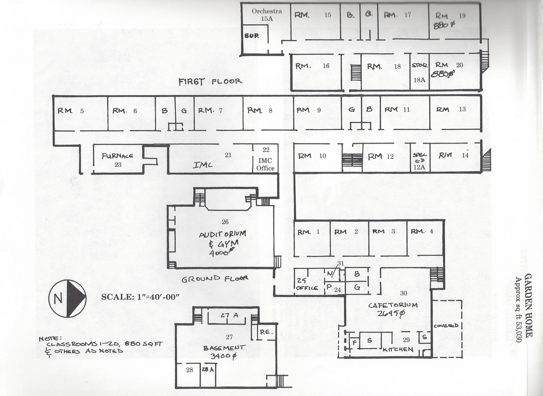
1983 Garden Home School floorplan diagram.
Courtesy Don Dunbar. See post.
Garden Home School by Don Dunbar, Principal 1968-1974
← Garden Home School by Don Dunbar, Principal 1968-1974
1983 Garden Home School floorplan diagram.
Courtesy Don Dunbar. See post.
(c) 2010-2025 GardenHomeHistory.com. Some images and text are reproduced here with permission. Images and text may be used for non-profit or educational purposes with attribution to GardenHomeHistory.com.
Contact us at gardenhomehistory@gmail.com.